GATHERED

People. Place. Mission.

Our New Home

On October 14 we purchased this property at 10440 E Northwest Highway. We are excited to finally have a place to call home, an embassy of Jesus Christ in east Dallas.

On this page, you can stay updated about the next steps of design and construction as well as the progress of our Gathered Capital Campaign and how you can get involved.

Project Schedule

  • Closing: Oct 14, 2025
  • Design: Fall 2025-Spring 2026
  • Construction: Q1 of 2026
  • Completion: Q4 of 2026

    (Note: all dates are tentative)

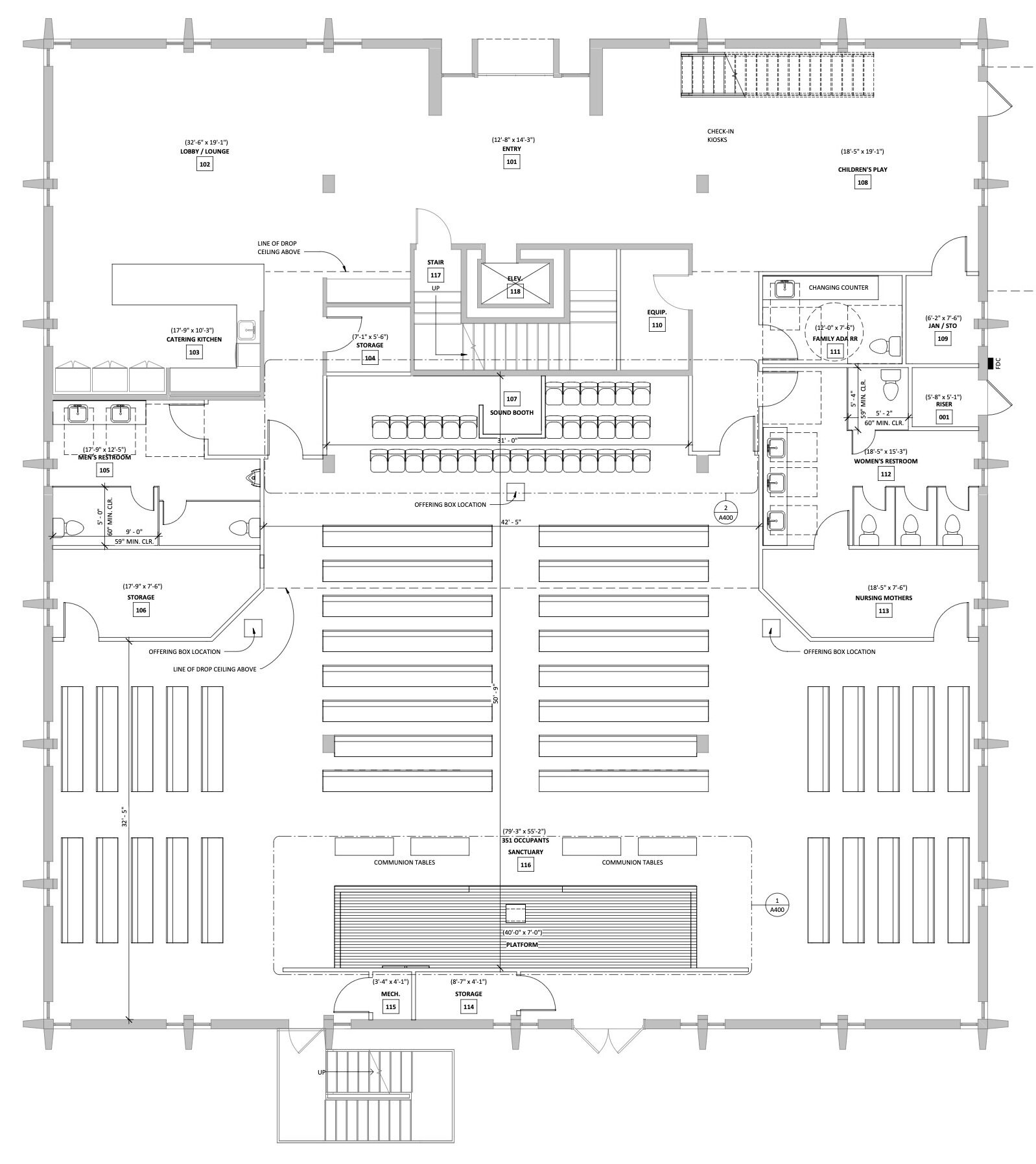
Conceptual Design

The drawings below depict a preliminary conceptual design of a renovated space.

Floor 1

Worship and fellowship space. 

Floor 2

Kids wing and other classrooms.

Floor 3

Office and other gathering space.

Capital Campaign

We started the Gathered Capital Campaign in the spring of 2024. Now that we are set to purchase our new home, we have set a new fundraising target of $2M. Follow our progress and join the campaign below.

PLEDGES MADE

  • $1.86M / $2M 93% 93%

MONIES RECEIVED

  • $565K / $2M 28% 28%

Last update: 11.11.25

If you would like to set up or inquire about an ongoing pledge, contact Jan James.

Cambodia Update

As part of our Gathered Capital Campaign, we pledged $100,000 to help Luke and Sokha Smith with MTW contruct a church building and ministry center in their village of Angkjeay, Cambodia. See the latest progress here!